服务热线:
0535-2110430

烟台
切换城市

热门城市

导航
返回顶部
返回顶部
狂欢再起 “4”不可挡
当前位置:首页 > 新闻动态

【润通润园】84平工业风格,无法自拔的诱惑

 发布时间:2019-08-20     浏览量:92     分享到:
文章
导读
  工业风,将偌大的空间进行任意切割,划分出住室、工作区、娱乐区,保留其最原生态的面貌,饱有一番时尚感。本案例柔化了工业
热门标签: 装修风格 青岛装饰
   工业风,将偌大的空间进行任意切割,划分出住室、工作区、娱乐区,保留其最原生态的面貌,饱有一番时尚感。本案例柔化了工业风的粗犷,加入了现代简约风格的元素,在保留工业风格自由随性的同时,注入了简约风的生活舒适感。
 
  案例赏析

项目名称:润通润园
设计单位:青岛鸿图装饰
建筑面积:84平
设计师:郭毅
装修风格:工业风
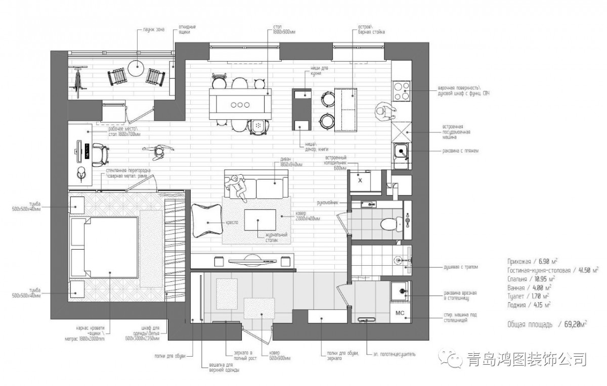
  平面布局图
 
  客厅
 
  黑色与不同深浅的灰色搭配恰到好处,极具朋克感。水电管线透过位置的安排以及颜色的配合展示最原生态的一面,成为室内的视觉元素之一,散发出工业风的酷。
 
  木质地板搭配异域风情的地毯,加上游戏手柄,漫画,公仔,音响这些元素,平时窝在地上也是一种极致享受,想必这样自由放松的客厅会受到很多理工男的青睐。
 
  餐厅
 
  深色涂鸦隔断很好的划分了空间功能,极具个性。餐桌金属材质的框架和木质的板面搭配起来是那么的协调,低垂的金色吊灯为用餐时光增添了不少浪漫的迷情,整个餐厅在粗犷中又给人一种温馨感。
 
  卧室
 
  卧室空间,浅灰色与米白色营造静谧的休息氛围。与阳台间的落地透明玻璃保证了光线,简单的黑色框架又带来了别样的文艺气息。在这样的环境中休息,怎能不热爱生活。
 
  阳台
 
  阳台空间运用了大量木质板材,无限贴近自然。小窗台上的几株盆栽为这个空间注入了无尽的绿意和活力,加上造型简洁的茶座,阳台成为再好不过的休息区。
 
  透明玻璃将窗外美景尽收眼底,搭配海滩挂画,仿佛置身海滩度假区的酒店。透明玻璃将窗外美景尽收眼底,搭配海滩挂画,仿佛置身海滩度假区的酒店。
环保不达标全负责
环保不达标全负责
售后10次回访
售后10次回访
5+1电话模式
5+1电话模式
一站式·30分钟回复
一站式30分钟回复
Copyright © 烟台鸿图装饰公司 All rights reserved.            备案号:鲁ICP备17005650号            网站制作烟台智联网络公司 
Copyright © 烟台鸿图装饰公司
免费申请