服务热线:
烟台
切换城市
热门城市
烟台
威海
青岛
连云港
临沂
潍坊
网站首页
精品案例
装修产品
设计师
热装楼盘
家具软装
促销活动
家居展厅
关于鸿图
设计与报价
网站首页
装修产品
新房装修
婚房装修
旧房改造
商业空间
精品案例
设计师
首席设计师
主任设计师
设计师
热装楼盘
家具软装
促销活动
关于鸿图
企业简介
企业荣誉
家居展厅
联系我们
人才招聘
设计与报价
返回顶部
装修案例
当前位置:
首页
>
精品案例
预约TA
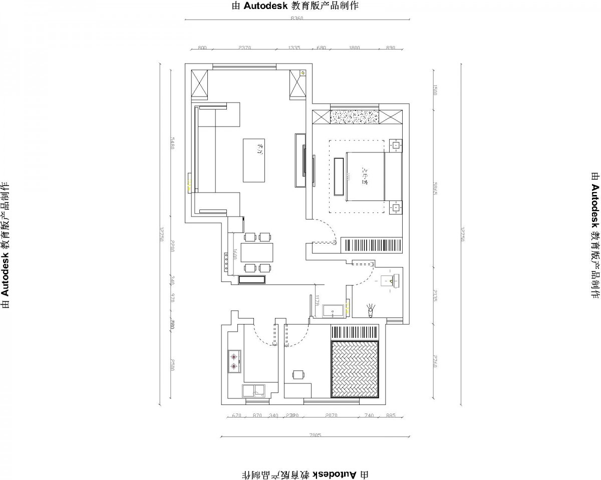
向阳花园104平 现代前卫装修设计效果图
设计师-
预约TA
0
个赞
所在小区:威海向阳花园
装修风格:现代简约
建筑面积:104平米
装修造价:12万
户型:三室
关注:152次浏览
0
个赞
设计说明
现代前卫风格比较的时尚,所以比较受追逐潮流的年轻人的追捧。现代前卫风格在设计上尽可能地采用新材料和新工艺,推崇有个性的结构特点和室内空间布置。现代前卫风格大胆运用色彩,探求鲜明的效果反差,黑白对比或者色彩冲撞。
向阳花园104平 现代前卫装修设计效果图
向阳花园104平 现代前卫装修设计效果图
向阳花园104平 现代前卫装修设计效果图
向阳花园104平 现代前卫装修设计效果图
向阳花园104平 现代前卫装修设计效果图
停止
播放
喜欢
其他相关案例
更多案例
【福山澳城苑小区】现代简约装修效果图
【黄海明珠】150平米乡村田园风格装修案例鉴
天泰城以琳美地89㎡简欧
其他相关案例
更多案例
威海山花泰和府100m²欧式风格装潢设计效果图
【佰和悦府】123平米现代简约风格装修案例
温泉小镇新中式——不求半世浮华但求恬淡人生
新城市花园160㎡简欧
免费量房
在线装修报价
立即预约>>
推荐设计师
更多
孙嘉翼
设计师
预约TA
潘婷
设计师
预约TA
于芹
首席设计师
预约TA
客户口碑
更多
富春山居业主送锦旗
锦旗表心意—兴盛名仕城业主
兴盛铭仕城业主送锦旗
安得利迎海花园业主送锦旗
最新活动
更多
时间:2019/09/20
地点:威海环翠区青岛中路39号(海韵华府朗郡三期)
环保不达标全负责
售后10次回访
5+1电话模式
一站式30分钟回复
Copyright © 烟台鸿图装饰公司 All rights reserved. 备案号:
鲁ICP备17005650号
网站制作
:
烟台智联网络公司
Copyright © 烟台鸿图装饰公司
首页
申请报价
活动报名
今日已有
341
位业主预约